FAMILIENGLÜCK - WOHNEN MIT GARTEN UND BOOTSANLEGER!

Winterhude, Hamburg

Das herrschaftliche Ensemble wurde 1914 erbaut und verkörpert seitdem die zeitlose Eleganz des Jugendstils mit der Klassik des hanseatischen Lebens.
Um den Glanz des Hauses beizubehalten, wurde mit dem Drang zum Perfektionismus das Gebäude in Teilen saniert. So erstrahlt unter anderem nun die historische Fassade des Gebäudes wieder in strahlendem Weiß, und die neuen dunklen Holzfenster zeichnen einen angenehmen Kontrast. Zusammengefasst wurde der historische Charakter des Hauses mit dem Komfort und der Technik des modernen Wohnens in eine perfekte Symbiose gebracht.

 

Die Imposanz des Hauses spürt man über das beeindruckende Entrée bis hin durch eine der neuen Wohnungstüren, die den klassischen Charakter mit einem RC2-Sicherheitsstandard vereinen und Sie in Ihr Zuhause eintauchen lassen.

 

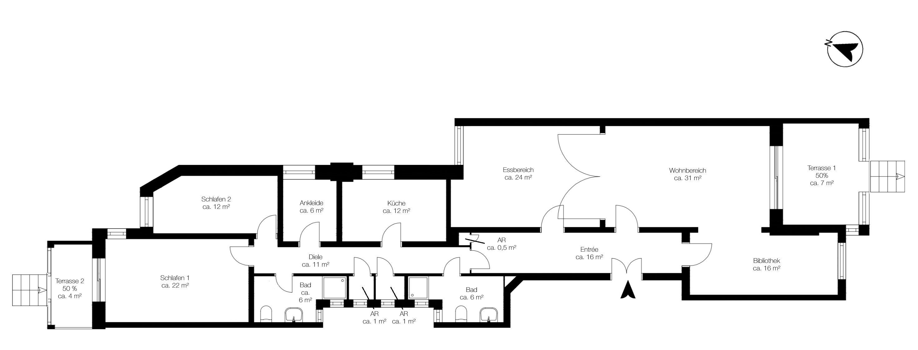
Die Wohnung besticht im Grundriss eines Hamburger Knochen, durch ihre zahllosen Jugendstilelemente, den traumhaft eingewachsenen Garten im Sondernutzungsrecht sowie durch einen eigenen Bootsanleger am Goldbekkanal. Neben aufwendigen Stuckelementen, klassischen Kassettentüren und über 3,30 Meter hohen Decken spüren Sie ebenfalls den Atem des modernen Lebens.

172 m²

5,5 Zimmer

Garten

Stellplatz

Balkon

Gäste WC

Ausstattung:

  • Garten im Sondernutzungsrecht
  • Bootsanleger am Goldbekkanal
  • Aufwendige Stuckelemente
  • Hamburger Fußleisten
  • Deckenhöhe ca. 3,30 m
  • Gäste-WC
  • Aufzug
  • Abstellraum im Keller

Typ:

Eigentumswohnung

Geschoss:

EG

Wohnfläche ca.:

172 m²

Zimmer:

5,5

Schlafzimmer:

3

Badezimmer:

2

Baujahr:

1914

Heizungsart:

Gas

Endenergieverbrauch:

133,1 kWh/m²a

Endenergieeffizienzklasse:

E

Kaufpreis:

2.250.000 €

Courtage:

3,57 % Käufercourtage

Grundriss

Grundriss
€2.250.000
Anfragen
Direkt Kontakt aufnehmen?
Photo Bethke und Jungermann Immobilien GmbH
Bethke und Jungermann Immobilien GmbH 040 60429690 info@bethkejungermann.de
Photo Bethke und Jungermann Immobilien GmbH
Bethke und Jungermann Immobilien GmbH
Anfragen
Direkt Kontakt aufnehmen?
Photo Bethke und Jungermann Immobilien GmbH
Bethke und Jungermann Immobilien GmbH

Exklusive Immobilien

Zugang zu den exklusivsten Objekten in Hamburgs besten Lagen

Persönlicher Service

Maßgeschneiderte Beratung und Betreuung von der ersten Besichtigung bis zum Abschluss

Vertrauenswürdige Expertise

Tiefes Verständnis für den Premium Immobilienmarkt in Hamburg