EIN ZUHAUSE. EIN ANWESEN. EINE FAMILIE.

Blankenese, Hamburg

EIN ZUHAUSE. EIN ANWESEN. EINE FAMILIE.

 

Diese repräsentative Villa in Hamburg-Blankenese ist mehr als nur ein Haus – sie ist ein Ort voller Geschichte, Charakter und Möglichkeiten. 1890 erbaut, verströmt sie mit klassischer Architektur, originalen Stilelementen und eindrucksvollen Deckenhöhen den Charme einer vergangenen Epoche.

 

Mit ca. 365 m² Wohnfläche, 12 Zimmern und einem parkähnlichen Grundstück von ca. 2.498 m² bietet sie Raum für großzügige Wohnideen – ob als Familienresidenz, Mehrgenerationenhaus oder stilvoller Rückzugsort.

 

Alte Bäume, ruhige Plätze im Grünen und viel Raum zur Entfaltung machen dieses Anwesen zu einem Refugium mitten in Blankenese. Frühstück auf der Terrasse, Abenteuer im Garten, lange Sommerabende unter freiem Himmel – hier entstehen neue Kapitel.

 

Die Lage: begehrt, naturnah und elbnah, mit exzellenter Infrastruktur.

525 m²

12 Zimmer

Garten

Gäste WC

Balkon

Typ:

Villa

Grundstück ca.:

2.489 m²

Wohnfläche ca.:

365 m²

Nutzfläche ca.:

160 m²

Zimmer:

12

Kaufpreis:

2.995.000 €

Baujahr:

1890

Endenergieverbrauch:

288 kWh/m²a

Energieeffizienzklasse:

H

Heizungsart:

Gas

Denkmalschutz:

Nein

Courtage:

3,57 % Käufercourtage

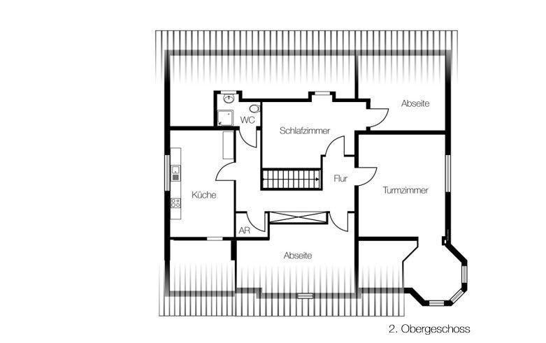
Grundriss

Grundriss Grundriss Grundriss Grundriss
2.995.000 €
Anfragen
Direkt Kontakt aufnehmen?
Photo Bethke und Jungermann Immobilien GmbH
Bethke und Jungermann Immobilien GmbH 040 60429690 info@bethkejungermann.de
Photo Bethke und Jungermann Immobilien GmbH
Bethke und Jungermann Immobilien GmbH
Anfragen
Direkt Kontakt aufnehmen?
Photo Bethke und Jungermann Immobilien GmbH
Bethke und Jungermann Immobilien GmbH

Exklusive Immobilien

Zugang zu den exklusivsten Objekten in Hamburgs besten Lagen

Persönlicher Service

Maßgeschneiderte Beratung und Betreuung von der ersten Besichtigung bis zum Abschluss

Vertrauenswürdige Expertise

Tiefes Verständnis für den Premium Immobilienmarkt in Hamburg